Concealed Beam Hanger
The BTALU concealed hanger is one solution to connecting timber members together without seeing the connector.
It is designed to be fixed to the header timber and then fully inserted into a slot in the in-coming beam, and held in place with dowels. Holes are drilled through the timber and fin of the BTALU, allowing accurate alignment. This method provides an aesthectically pleasing connection for feature beams.
Note: Fasteners & dowels supplied; dowel length must be specified upon ordering
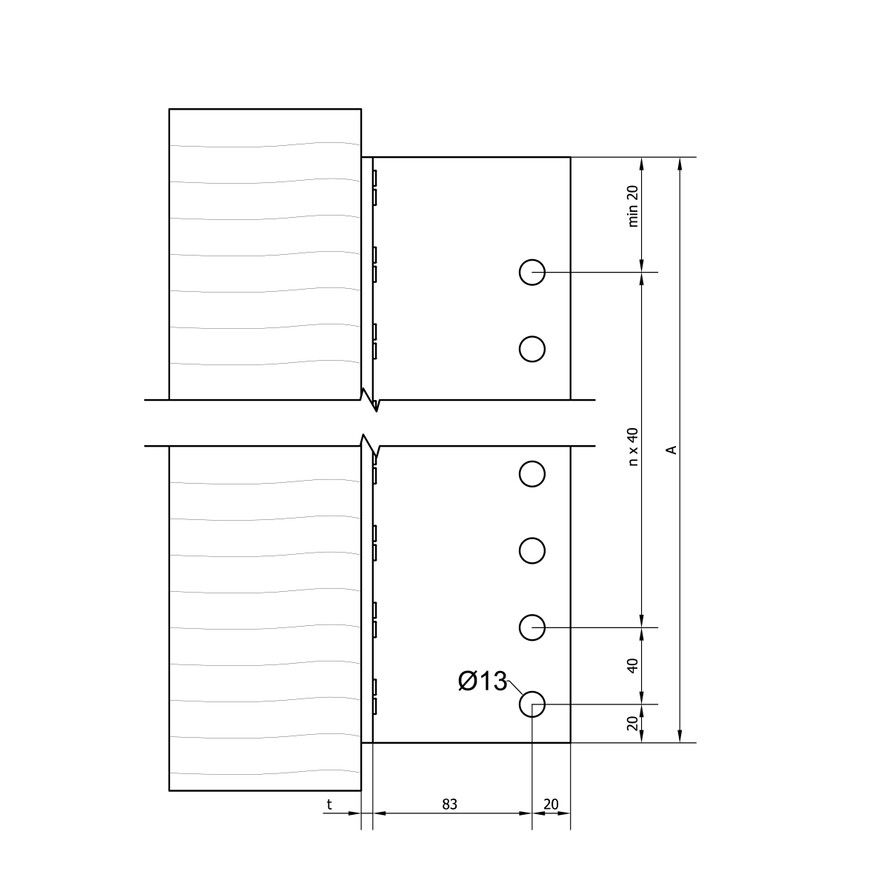
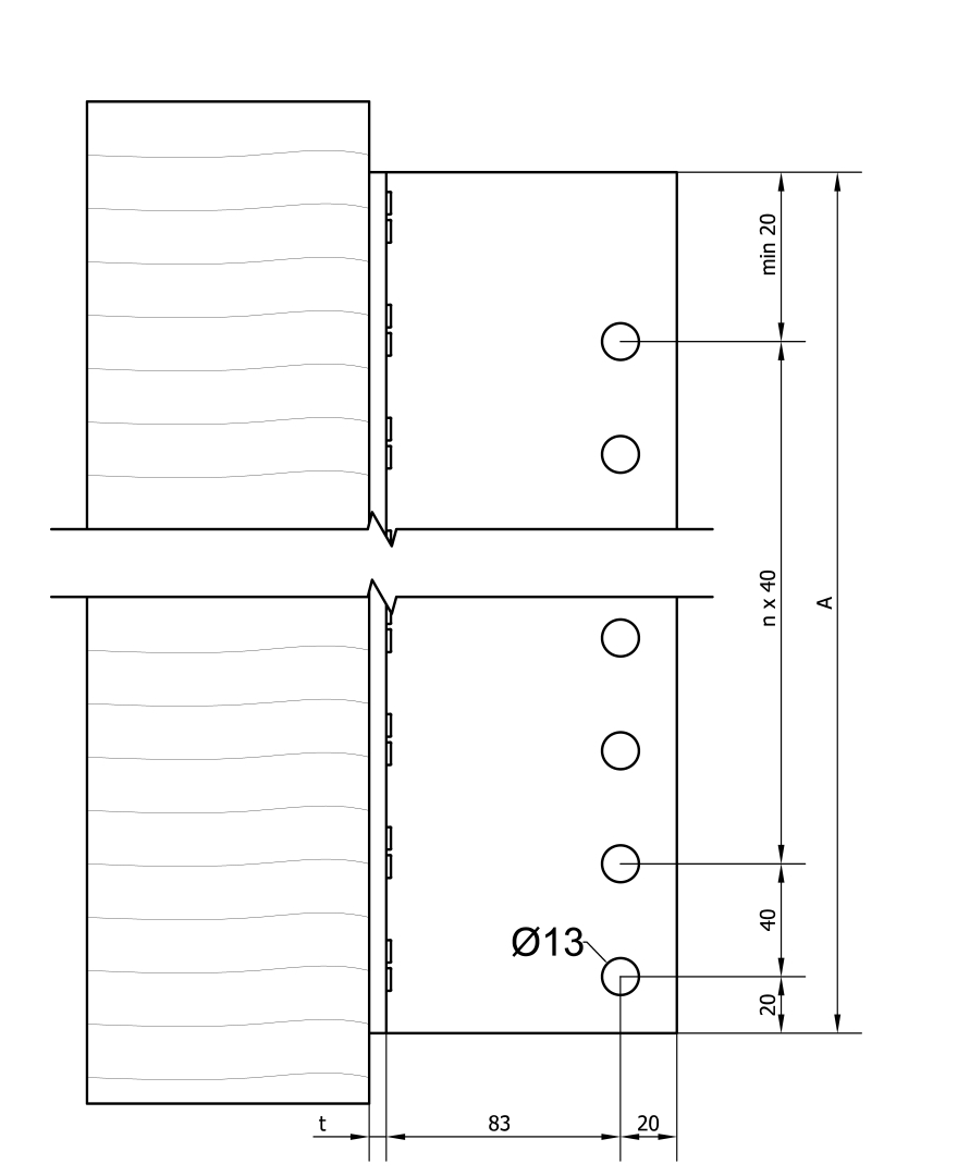
Holes for the joist have to be site drilled in accordance to positions shown in diagram below.
Discontinued Products
Variant Status Details
Technical Data
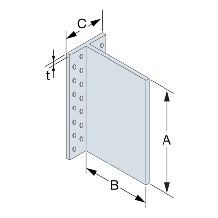
Product Dimensions
| References | Tun / DB nr. | Product Dimensions [mm] | Header holes | Box Quantity | Weight [kg] | |||
|---|---|---|---|---|---|---|---|---|
| A | B | C | t | Ø5 | ||||
| BTALU90 | 1862485 | 86 | 109 | 62 | 6 | 16 | 25 | 0.23 |
| BTALU120 | 1821910 | 116 | 109 | 62 | 6 | 20 | 25 | 0.3 |
| BTALU160 | 1821917 | 156 | 109 | 62 | 6 | 28 | 25 | 0.41 |
| BTALU200 | 1862489 | 196 | 109 | 62 | 6 | 38 | 15 | 0.51 |
| BTALU240 | 1821920 | 236 | 109 | 62 | 6 | 44 | 15 | 0.61 |
The holes for the joist has to be drill acc. to the hole pattern of the ETA.
The size A can be up to 4mm less for cutting from the raw length, the cut shall be between the nail holes.
Performance Values
| References | Product Capacities [kN] | |||||||||
|---|---|---|---|---|---|---|---|---|---|---|
| Number of Fasteners | R1,k = R2.k | |||||||||
| Header | Joist | Dowels length [mm] | ||||||||
| Qty | Type | Qty | Type | 60 | 80 | 100 | 120 | 140 | 160 | |
| BTALU90 | 16 | CNA4.0x50 | 4 | STD8 | 10.8 | 11.8 | 12.9 | 13.7 | 13.7 | 13.7 |
| BTALU120 | 20 | CNA4.0x50 | 3 | STD12 | 17.3 | 18.2 | 19.4 | 20.7 | 22.3 | 23.9 |
| BTALU160 | 28 | CNA4.0x50 | 4 | STD12 | 28 | 29.5 | 31.2 | 33.3 | 35.7 | 38.2 |
| BTALU200 | 38 | CNA4.0x50 | 5 | STD12 | 39.8 | 41.9 | 44.3 | 47.2 | 50.4 | 53.9 |
| BTALU240 | 44 | CNA4.0x50 | 6 | STD12 | 52.2 | 54.9 | 57.9 | 61.7 | 65.9 | 70.3 |
| BTALU1200/120 | 20 | CNA4.0x50 | 3 | STD12 | 17.3 | 18.2 | 19.4 | 20.7 | 22.3 | 23.9 |
| BTALU1200/160 | 28 | CNA4.0x50 | 4 | STD12 | 28 | 29.5 | 31.2 | 33.3 | 35.7 | 38.2 |
| BTALU1200/200 | 36 | CNA4.0x50 | 5 | STD12 | 39.8 | 41.9 | 44.3 | 47.2 | 50.4 | 53.9 |
| BTALU1200/240 | 44 | CNA4.0x50 | 6 | STD12 | 52.2 | 54.9 | 57.9 | 61.7 | 65.9 | 70.3 |
| BTALU1200/280 | 52 | CNA4.0x50 | 7 | STD12 | 64.6 | 68 | 71.7 | 76.4 | 81.7 | 87.2 |
| BTALU1200/320 | 60 | CNA4.0x50 | 8 | STD12 | 77 | 81 | 85.5 | 91.2 | 97.5 | 104.1 |
| BTALU1200/360 | 68 | CNA4.0x50 | 9 | STD12 | 89.1 | 93.8 | 99 | 105.8 | 113.3 | 121.1 |
| BTALU1200/400 | 76 | CNA4.0x50 | 10 | STD12 | 100.8 | 106.1 | 112.3 | 120.2 | 129 | 137.9 |
| BTALU1200/440 | 84 | CNA4.0x50 | 11 | STD12 | 112.1 | 118 | 125.2 | 134.4 | 144.4 | 154.7 |
| BTALU1200/480 | 92 | CNA4.0x50 | 12 | STD12 | 122.8 | 129.3 | 137.7 | 148.2 | 159.7 | 171.3 |
| BTALU1200/520 | 100 | CNA4.0x50 | 12 | STD12 | 122.8 | 129.3 | 138.4 | 150.5 | 163.1 | 175.8 |
| BTALU1200/560 | 108 | CNA4.0x50 | 12 | STD12 | 122.8 | 129.3 | 138.4 | 150.7 | 164.9 | 179.1 |
| BTALU1200/600 | 116 | CNA4.0x50 | 12 | STD12 | 122.8 | 129.3 | 138.4 | 150.7 | 164.9 | 180.4 |
The joist shall have as minimum a width = length of steel dowel.
For beams with a slope β the capacities shall be multiply with the factor.
| β | 0° | 15° | 30° | 45° |
| factor | 1.0 | 0.95 | 0.90 | 0.85 |
It´s only necessary for connection with less than 7 steel dowel in the joist.
Product characteristic capacities - Timber beam to timber beam - R3.k and R4.k
| References | Product Capacities [kN] | ||||||||||
|---|---|---|---|---|---|---|---|---|---|---|---|
| Number of Fasteners | Product characteristic capacities - Timber C24 [kN] | ||||||||||
| Header | Joist | R3,k | R4,k | ||||||||
| Qty | Type | Qty | Type | Dowels length [mm] | |||||||
| 60 | 80 | 100 | 120 | 140 | 160 | ||||||
| BTALU90 | 16 | CNA4.0x50 | 4 | STD8 | 1.5 | 1.9 | 2.3 | 2.7 | 3.1 | 3.6 | 7.8 |
| BTALU120 | 20 | CNA4.0x50 | 3 | STD12 | 2.2 | 2.9 | 3.5 | 4.2 | 4.8 | 5.6 | 9.8 |
| BTALU160 | 28 | CNA4.0x50 | 4 | STD12 | 2.9 | 3.6 | 4.4 | 5.3 | 6.2 | 7 | 13.7 |
| BTALU200 | 38 | CNA4.0x50 | 5 | STD12 | 3.5 | 4.4 | 5.4 | 6.4 | 7.4 | 8.4 | 17.6 |
| BTALU240 | 44 | CNA4.0x50 | 6 | STD12 | 4.2 | 5.3 | 6.4 | 7.4 | 8.6 | 9.8 | 21.6 |
| BTALU1200/120 | 20 | CNA4.0x50 | 3 | STD12 | 2.2 | 2.9 | 3.5 | 4.2 | 4.8 | 5.6 | 9.8 |
| BTALU1200/160 | 28 | CNA4.0x50 | 4 | STD12 | 2.9 | 3.6 | 4.4 | 5.3 | 6.2 | 7 | 13.7 |
| BTALU1200/200 | 36 | CNA4.0x50 | 5 | STD12 | 3.5 | 4.4 | 5.4 | 6.4 | 7.4 | 8.4 | 17.6 |
| BTALU1200/240 | 44 | CNA4.0x50 | 6 | STD12 | 4.2 | 5.3 | 6.4 | 7.4 | 8.6 | 9.8 | 21.5 |
| BTALU1200/280 | 52 | CNA4.0x50 | 7 | STD12 | 4.8 | 6.1 | 7.3 | 8.5 | 9.9 | 11.3 | 25.5 |
| BTALU1200/320 | 60 | CNA4.0x50 | 8 | STD12 | 5.5 | 6.8 | 8.3 | 9.7 | 11.1 | 12.9 | 29.4 |
| BTALU1200/360 | 68 | CNA4.0x50 | 9 | STD12 | 6.1 | 7.6 | 9.2 | 10.9 | 12.4 | 14.4 | 33.3 |
| BTALU1200/400 | 76 | CNA4.0x50 | 10 | STD12 | 6.7 | 8.3 | 10.1 | 12.1 | 13.8 | 15.8 | 37.2 |
| BTALU1200/440 | 84 | CNA4.0x50 | 11 | STD12 | 7.3 | 9.1 | 11 | 13.2 | 15.2 | 17.2 | 41.2 |
| BTALU1200/480 | 92 | CNA4.0x50 | 12 | STD12 | 7.9 | 9.8 | 11.9 | 14.3 | 16.6 | 18.7 | 45.1 |
| BTALU1200/520 | 100 | CNA4.0x50 | 12 | STD12 | 8.6 | 10.6 | 12.8 | 15.4 | 17.8 | 20.1 | 49 |
| BTALU1200/560 | 108 | CNA4.0x50 | 12 | STD12 | 9.2 | 11.3 | 13.8 | 16.5 | 19.1 | 21.5 | 52.9 |
| BTALU1200/600 | 116 | CNA4.0x50 | 12 | STD12 | 9.8 | 12.1 | 14.7 | 17.6 | 20.4 | 23 | 56.8 |
The joist shall have as minimum a width = length of steel dowel.
The capacities R4 are for all length of steel dowel.
Product characteristic capacities - Timber beam to timber post
| References | Product characteristic capacities - Timber beam to timber post - partial nailing | ||||||||||
|---|---|---|---|---|---|---|---|---|---|---|---|
| Number of Fasteners | Post width | Product characteristic capacities - Timber C24 [kN] | |||||||||
| Header | Joist | Min | R1,k = R2.k | ||||||||
| Qty | Type | Qty | Type | Dowels length [mm] | |||||||
| 60 | 80 | 100 | 120 | 140 | 160 | ||||||
| BTALU90 | 8 | CNA4.0x50 | 4 | STD8 | 96 | 9 | 9.9 | 10.9 | 11.6 | 11.6 | 11.6 |
| BTALU120 | 12 | CNA4.0x50 | 3 | STD12 | 96 | 14.7 | 15.5 | 16.6 | 17.9 | 19.4 | 20.7 |
| BTALU160 | 16 | CNA4.0x50 | 4 | STD12 | 96 | 23.2 | 24.4 | 26 | 27.9 | 30 | 32 |
| BTALU200 | 20 | CNA4.0x50 | 5 | STD12 | 96 | 32.4 | 34.1 | 36.2 | 38.7 | 41.2 | 43.4 |
| BTALU240 | 24 | CNA4.0x50 | 6 | STD12 | 96 | 42.1 | 44.3 | 46.8 | 49.7 | 52.3 | 53.2 |
| BTALU1200/120 | 12 | CNA4.0x50 | 3 | STD12 | 96 | 14.7 | 15.5 | 16.6 | 17.9 | 19.4 | 20.7 |
| BTALU1200/160 | 16 | CNA4.0x50 | 4 | STD12 | 96 | 23.2 | 24.4 | 26 | 27.9 | 30 | 32 |
| BTALU1200/200 | 20 | CNA4.0x50 | 5 | STD12 | 96 | 32.4 | 34.1 | 36.2 | 38.7 | 41.2 | 43.4 |
| BTALU1200/240 | 24 | CNA4.0x50 | 6 | STD12 | 96 | 42.1 | 44.3 | 46.8 | 49.7 | 52.3 | 53.2 |
| BTALU1200/280 | 28 | CNA4.0x50 | 7 | STD12 | 96 | 52 | 54.7 | 57.5 | 60.5 | 62 | 62 |
| BTALU1200/320 | 32 | CNA4.0x50 | 8 | STD12 | 96 | 61.8 | 65.1 | 68.1 | 70.7 | 70.9 | 70.9 |
| BTALU1200/360 | 36 | CNA4.0x50 | 9 | STD12 | 96 | 71.7 | 75.5 | 78.5 | 79.8 | 79.8 | 79.8 |
| BTALU1200/400 | 40 | CNA4.0x50 | 10 | STD12 | 96 | 81.4 | 85.7 | 88.4 | 88.6 | 88.6 | 88.6 |
| BTALU1200/440 | 44 | CNA4.0x50 | 11 | STD12 | 96 | 91 | 95.8 | 97.5 | 97.5 | 97.5 | 97.5 |
| BTALU1200/480 | 48 | CNA4.0x50 | 12 | STD12 | 96 | 100.3 | 105.6 | 106.4 | 106.4 | 106.4 | 106.4 |
| BTALU1200/520 | 52 | CNA4.0x50 | 12 | STD12 | 96 | 105.5 | 111.1 | 114.6 | 115.2 | 115.2 | 115.2 |
| BTALU1200/560 | 56 | CNA4.0x50 | 12 | STD12 | 96 | 109.9 | 115.7 | 120.3 | 124 | 124.1 | 124.1 |
| BTALU1200/600 | 60 | CNA4.0x50 | 12 | STD12 | 96 | 113.8 | 119.8 | 125 | 130.5 | 133 | 133 |
The joist shall have as minimum a width = length of steel dowel.
For beams with a slope β the capacities shall be multiplywith the factor.
| β | 0° | 15° | 30° | 45° |
| factor | 1.0 | 0.95 | 0.90 | 0.85 |
It´s only necessary for connection with less than 7 steel dowel in the joist.
The capacities R4 are for all length of steel dowel.
The capacities from this table are also valid for partial nailing beam to beam.
Product characteristic capacities - Timber beam to timber post - R3.k and R4.k
| References | Product characteristic capacities - Timber beam to timber post - partial nailing | |||||||||||
|---|---|---|---|---|---|---|---|---|---|---|---|---|
| Number of Fasteners | Post width | Product characteristic capacities - Timber C24 [kN] | ||||||||||
| Header | Joist | Min | R3,k | R4,k | ||||||||
| Qty | Type | Qty | Type | Dowels length [mm] | ||||||||
| 60 | 80 | 100 | 120 | 140 | 160 | |||||||
| BTALU90 | 8 | CNA4.0x50 | 4 | STD8 | 96 | 1.5 | 1.9 | 2.3 | 2.7 | 2.7 | 2.7 | 3.9 |
| BTALU120 | 12 | CNA4.0x50 | 3 | STD12 | 96 | 2.2 | 2.9 | 3.5 | 4.2 | 4.8 | 5.6 | 5.9 |
| BTALU160 | 16 | CNA4.0x50 | 4 | STD12 | 96 | 2.9 | 3.6 | 4.4 | 5.3 | 6.2 | 7 | 7.8 |
| BTALU200 | 20 | CNA4.0x50 | 5 | STD12 | 96 | 3.5 | 4.4 | 5.4 | 6.4 | 7.4 | 8.4 | 9.8 |
| BTALU240 | 24 | CNA4.0x50 | 6 | STD12 | 96 | 4.2 | 5.3 | 6.4 | 7.4 | 8.6 | 9.8 | 11.8 |
| BTALU1200/120 | 12 | CNA4.0x50 | 3 | STD12 | 96 | 2.2 | 2.9 | 3.5 | 4.2 | 4.8 | 5.6 | 5.9 |
| BTALU1200/160 | 16 | CNA4.0x50 | 4 | STD12 | 96 | 2.9 | 3.6 | 4.4 | 5.3 | 6.2 | 7 | 7.8 |
| BTALU1200/200 | 20 | CNA4.0x50 | 5 | STD12 | 96 | 3.5 | 4.4 | 5.4 | 6.4 | 7.4 | 8.4 | 9.8 |
| BTALU1200/240 | 24 | CNA4.0x50 | 6 | STD12 | 96 | 4.2 | 5.3 | 6.4 | 7.4 | 8.6 | 9.8 | 11.8 |
| BTALU1200/280 | 28 | CNA4.0x50 | 7 | STD12 | 96 | 4.5 | 5.6 | 6.7 | 7.7 | 8.9 | 10.1 | 13.7 |
| BTALU1200/320 | 32 | CNA4.0x50 | 8 | STD12 | 96 | 5.2 | 6.4 | 7.7 | 8.8 | 10.2 | 11.5 | 15.7 |
| BTALU1200/360 | 36 | CNA4.0x50 | 9 | STD12 | 96 | 5.8 | 7.2 | 8.6 | 9.9 | 11.5 | 12.9 | 17.6 |
| BTALU1200/400 | 40 | CNA4.0x50 | 10 | STD12 | 96 | 6.5 | 8 | 9.6 | 11 | 12.7 | 14.4 | 19.6 |
| BTALU1200/440 | 44 | CNA4.0x50 | 11 | STD12 | 96 | 7.1 | 8.8 | 10.5 | 12.1 | 14 | 15.8 | 21.6 |
| BTALU1200/480 | 48 | CNA4.0x50 | 12 | STD12 | 96 | 7.7 | 9.5 | 11.5 | 13.2 | 15.3 | 17.2 | 23.5 |
| BTALU1200/520 | 52 | CNA4.0x50 | 12 | STD12 | 96 | 8.4 | 10.3 | 12.4 | 14.3 | 16.6 | 18.7 | 25.5 |
| BTALU1200/560 | 56 | CNA4.0x50 | 12 | STD12 | 96 | 9 | 11.1 | 13.4 | 15.4 | 17.8 | 20.1 | 27.4 |
| BTALU1200/600 | 60 | CNA4.0x50 | 12 | STD12 | 96 | 9.7 | 11.9 | 14.4 | 16.5 | 19.1 | 21.5 | 29.4 |
The joist shall have as minimum a width = length of steel dowel.
The capacities R4 are for all length of steel dowel.
Product characteristic capacities - Timber beam to timber beam - R3.k and R4.k - SDD
| References | Characteristic Capacities - Timber C24 [kN] | |||||||||
|---|---|---|---|---|---|---|---|---|---|---|
| Fasteners | Product characteristic capacities - Timber C24 [kN] | |||||||||
| Header | Joist | R3,k | R4,k | |||||||
| Qty | Type | Qty | Dowel | Dowels length [mm] | ||||||
| 93 | 113 | 133 | 153 | 173 | ||||||
| BTALU90 | - | - | - | - | - | - | - | - | - | - |
| BTALU120 | 22 | CNA4.0x50 | 3 | SDD7.5 | 2.9 | 3.5 | 4.2 | 4.8 | 5.6 | 8.8 |
| BTALU160 | 30 | CNA4.0x50 | 4 | SDD7.5 | 3.6 | 4.4 | 5.3 | 6.2 | 7 | 12.7 |
| BTALU200 | 38 | CNA4.0x50 | 5 | SDD7.5 | 4.4 | 5.4 | 6.4 | 7.4 | 8.4 | 16.7 |
| BTALU240 | 46 | CNA4.0x50 | 6 | SDD7.5 | 5.3 | 6.4 | 7.4 | 8.6 | 9.8 | 20.6 |
| BTALU1200/120 | 20 | CNA4.0x50 | 3 | SDD7.5 | 2.9 | 3.5 | 4.2 | 4.8 | 5.6 | 8.8 |
| BTALU1200/160 | 28 | CNA4.0x50 | 4 | SDD7.5 | 3.6 | 4.4 | 5.3 | 6.2 | 7 | 12.7 |
| BTALU1200/200 | 36 | CNA4.0x50 | 5 | SDD7.5 | 4.4 | 5.4 | 6.4 | 7.4 | 8.4 | 16.7 |
| BTALU1200/240 | 44 | CNA4.0x50 | 6 | SDD7.5 | 5.3 | 6.4 | 7.4 | 8.6 | 9.8 | 20.6 |
| BTALU1200/280 | 52 | CNA4.0x50 | 7 | SDD7.5 | 6.1 | 7.3 | 8.5 | 9.9 | 11.3 | 24.5 |
| BTALU1200/320 | 60 | CNA4.0x50 | 8 | SDD7.5 | 6.8 | 8.3 | 9.7 | 11.1 | 12.9 | 28.4 |
| BTALU1200/360 | 68 | CNA4.0x50 | 9 | SDD7.5 | 7.6 | 9.2 | 10.9 | 12.4 | 14.4 | 32.3 |
| BTALU1200/400 | 76 | CNA4.0x50 | 10 | SDD7.5 | 8.3 | 10.1 | 12.1 | 13.8 | 15.8 | 36.3 |
| BTALU1200/440 | 84 | CNA4.0x50 | 11 | SDD7.5 | 9.1 | 11 | 13.2 | 15.2 | 17.2 | 40.2 |
| BTALU1200/480 | 92 | CNA4.0x50 | 12 | SDD7.5 | 9.8 | 11.9 | 14.3 | 16.6 | 18.7 | 44.1 |
| BTALU1200/520 | 100 | CNA4.0x50 | 12 | SDD7.5 | 10.6 | 12.8 | 15.4 | 17.8 | 20.1 | 48 |
| BTALU1200/560 | 108 | CNA4.0x50 | 12 | SDD7.5 | 11.3 | 13.8 | 16.5 | 19.1 | 21.5 | 51.9 |
| BTALU1200/600 | 116 | CNA4.0x50 | 12 | SDD7.5 | 12.1 | 14.7 | 17.6 | 20.4 | 23 | 55.9 |
The joist shall have as minimum a width = length of steel dowel.
The capacities R4 are for all length of steel dowel.
Product characteristic capacities - Timber beam to timber post with SDD
| References | Product characteristic capacities - Timber beam to timber post - partial nailing | ||||||||||
|---|---|---|---|---|---|---|---|---|---|---|---|
| Fasteners | Post width | Product characteristic capacities - Timber C24 [kN] | |||||||||
| Header | Joist | Min | R1,k = R2.k | R4,k | |||||||
| Qty | Type | Qty | Type | Dowels length [mm] | |||||||
| 93 | 113 | 133 | 153 | 173 | |||||||
| BTALU90 | - | - | - | - | 96 | - | - | - | - | - | - |
| BTALU120 | 12 | CNA4.0x50 | 3 | SDD7.5 | 96 | 12.2 | 13.2 | 13.5 | 14.1 | 14.1 | 8.8 |
| BTALU160 | 16 | CNA4.0x50 | 4 | SDD7.5 | 96 | 18.7 | 19.7 | 21.3 | 21.3 | 21.3 | 12.7 |
| BTALU200 | 20 | CNA4.0x50 | 5 | SDD7.5 | 96 | 25.9 | 27.7 | 29.8 | 29.8 | 29.8 | 16.7 |
| BTALU240 | 24 | CNA4.0x50 | 6 | SDD7.5 | 96 | 33.6 | 36.2 | 38.9 | 38.9 | 38.9 | 20.6 |
| BTALU1200/120 | 12 | CNA4.0x50 | 3 | SDD7.5 | 96 | 12.2 | 13.2 | 13.5 | 14.1 | 14.1 | 8.8 |
| BTALU1200/160 | 16 | CNA4.0x50 | 4 | SDD7.5 | 96 | 18.7 | 19.7 | 21.3 | 21.3 | 21.3 | 12.7 |
| BTALU1200/200 | 20 | CNA4.0x50 | 5 | SDD7.5 | 96 | 25.9 | 27.7 | 29.8 | 29.8 | 29.8 | 16.7 |
| BTALU1200/240 | 24 | CNA4.0x50 | 6 | SDD7.5 | 96 | 33.6 | 36.2 | 38.9 | 38.9 | 38.9 | 20.6 |
| BTALU1200/280 | 28 | CNA4.0x50 | 7 | SDD7.5 | 96 | 41.5 | 44.9 | 48.2 | 48.2 | 48.2 | 24.5 |
| BTALU1200/320 | 32 | CNA4.0x50 | 8 | SDD7.5 | 96 | 49.4 | 53.6 | 53.6 | 53.6 | 53.6 | 28.4 |
| BTALU1200/360 | 36 | CNA4.0x50 | 9 | SDD7.5 | 96 | 57.5 | 62.4 | 62.4 | 62.4 | 62.4 | 32.3 |
| BTALU1200/400 | 40 | CNA4.0x50 | 10 | SDD7.5 | 96 | 65.5 | 71.2 | 76.4 | 76.4 | 76.4 | 36.3 |
| BTALU1200/440 | 44 | CNA4.0x50 | 11 | SDD7.5 | 96 | 73.6 | 79.3 | 85.8 | 91.4 | 92.5 | 40.2 |
| BTALU1200/480 | 48 | CNA4.0x50 | 12 | SDD7.5 | 96 | 81.4 | 57.9 | 94.5 | 100.2 | 101.7 | 44.1 |
| BTALU1200/520 | 52 | CNA4.0x50 | 12 | SDD7.5 | 96 | 83.6 | 90.2 | 97.5 | 104.1 | 106.4 | 48 |
| BTALU1200/560 | 56 | CNA4.0x50 | 12 | SDD7.5 | 96 | 85.9 | 92.5 | 100.5 | 107.9 | 111.2 | 51.9 |
| BTALU1200/600 | 60 | CNA4.0x50 | 12 | SDD7.5 | 96 | 85.9 | 94.8 | 103.5 | 111.7 | 115.9 | 55.9 |
The joist shall have as minimum a width = length of steel dowel.
For beams with a slope β the capacities shall be multiplywith the factor.
| β | 0° | 15° | 30° | 45° |
| factor | 1.0 | 0.92 | 0.90 | 0.85 |
It´s only necessary for connection with less than 7 steel dowel in the joist.
The capacities R4 are for all length of steel dowel.
The capacities from this table are also valid for partial nailing beam to beam.
Product characteristic capacities - Timber beam to timber post - R3.k and R4.k - SDD
| References | Product characteristic capacities - Timber beam to timber post - partial nailing | ||||||||||
|---|---|---|---|---|---|---|---|---|---|---|---|
| Fasteners | Post width | Product characteristic capacities - Timber C24 [kN] | |||||||||
| Header | Joist | Min | R3,k | R4,k | |||||||
| Qty | Type | Qty | Type | Dowels length [mm] | |||||||
| 93 | 113 | 133 | 153 | 173 | |||||||
| BTALU90 | - | - | - | - | 96 | - | - | - | - | - | - |
| BTALU120 | 12 | CNA4.0x50 | 3 | SDD7.5 | 96 | 2.9 | 3.5 | 4.2 | 4.8 | 5.6 | 8.8 |
| BTALU160 | 16 | CNA4.0x50 | 4 | SDD7.5 | 96 | 3.6 | 4.4 | 5.3 | 6.2 | 7 | 12.7 |
| BTALU200 | 20 | CNA4.0x50 | 5 | SDD7.5 | 96 | 4.4 | 5.4 | 6.4 | 7.4 | 8.4 | 16.7 |
| BTALU240 | 24 | CNA4.0x50 | 6 | SDD7.5 | 96 | 5.3 | 6.4 | 7.4 | 8.6 | 9.8 | 20.6 |
| BTALU1200/120 | 12 | CNA4.0x50 | 3 | SDD7.5 | 96 | 2.9 | 3.5 | 4.2 | 4.8 | 5.6 | 8.8 |
| BTALU1200/160 | 16 | CNA4.0x50 | 4 | SDD7.5 | 96 | 3.6 | 4.4 | 5.3 | 6.2 | 7 | 12.7 |
| BTALU1200/200 | 20 | CNA4.0x50 | 5 | SDD7.5 | 96 | 4.4 | 5.4 | 6.4 | 7.4 | 8.4 | 16.7 |
| BTALU1200/240 | 24 | CNA4.0x50 | 6 | SDD7.5 | 96 | 5.3 | 6.4 | 7.4 | 8.6 | 9.8 | 20.6 |
| BTALU1200/280 | 28 | CNA4.0x50 | 7 | SDD7.5 | 96 | 5.6 | 6.7 | 7.7 | 8.9 | 10.1 | 24.5 |
| BTALU1200/320 | 32 | CNA4.0x50 | 8 | SDD7.5 | 96 | 6.4 | 7.7 | 8.8 | 10.2 | 11.5 | 28.4 |
| BTALU1200/360 | 36 | CNA4.0x50 | 9 | SDD7.5 | 96 | 7.2 | 8.6 | 9.9 | 11.5 | 12.9 | 32.3 |
| BTALU1200/400 | 40 | CNA4.0x50 | 10 | SDD7.5 | 96 | 8 | 9.6 | 11 | 12.7 | 14.4 | 36.3 |
| BTALU1200/440 | 44 | CNA4.0x50 | 11 | SDD7.5 | 96 | 8.8 | 10.5 | 12.1 | 14 | 15.8 | 40.2 |
| BTALU1200/480 | 48 | CNA4.0x50 | 12 | SDD7.5 | 96 | 9.5 | 11.5 | 13.2 | 15.3 | 17.2 | 44.1 |
| BTALU1200/520 | 52 | CNA4.0x50 | 12 | SDD7.5 | 96 | 10.3 | 12.4 | 14.3 | 16.6 | 18.7 | 48 |
| BTALU1200/560 | 56 | CNA4.0x50 | 12 | SDD7.5 | 96 | 11.1 | 13.4 | 15.4 | 17.8 | 20.1 | 51.9 |
| BTALU1200/600 | 60 | CNA4.0x50 | 12 | SDD7.5 | 96 | 11.9 | 14.4 | 16.5 | 19.1 | 21.5 | 55.9 |
The joist shall have as minimum a width = length of steel dowel.
The capacities R4 are for all length of steel dowel.